Haus Bo - ehemals Stephanie

Beschreibung
Die Unterkunft
Zur Uwe Düne 6b, 25999 Kampen

- Bei gemeinsamer Anmietung der Domizile Bo und Boy besteht die Möglichkeit, die Häuser über einen inneren Durchgang zu verbinden, und somit ein großzügiges Reetdachanwesen für bis zu 19 Personen zu erleben -

Durch die Garderobe werden Sie vom großzügigen Empfangsbereich in 300 Quadratmeter Wellness und Erholung für bis zu 15 Gäste eingeladen. Im Erdgeschoss finden Sie das lichtdurchflutete Wohn-/Esszimmer, in dem die stilvolle Sofa-Landschaft sowie die Eckbank zum Lesen, Fernsehen oder einfach zum Verweilen verleitet. In der voll ausgestatteten Küche mit Esstisch bleiben keine Wünsche offen. Die Küche ist mit einer Nespresso-Maschine sowie mit einer Kaffeefiltermaschine ausgestattet.

Auf dieser Ebene erwartet Sie ebenfalls der Wellnessbereich mit Sauna, Regendusche und Ruheraum.

Im Untergeschoss finden Sie Waschmaschine und Trockner.

Folgende Schlafmöglichkeiten stehen Ihnen im Haus Bo zur Verfügung:

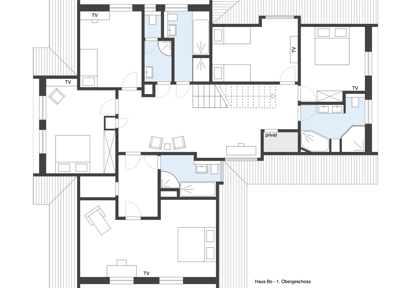
Im ersten Obergeschoss das Master-Schlafzimmer mit Doppelbett, eigener Garderobe und Bad en Suite, ein großes Schlafzimmer mit Doppelbett und Bad en Suite sowie ein weiteres Schlafzimmer mit Doppelbett. Auf dieser Ebene befindet sich außerdem noch ein Schlafzimmer mit zwei Einzelbetten und ein Schlafzimmer mit einem Einzelbett.

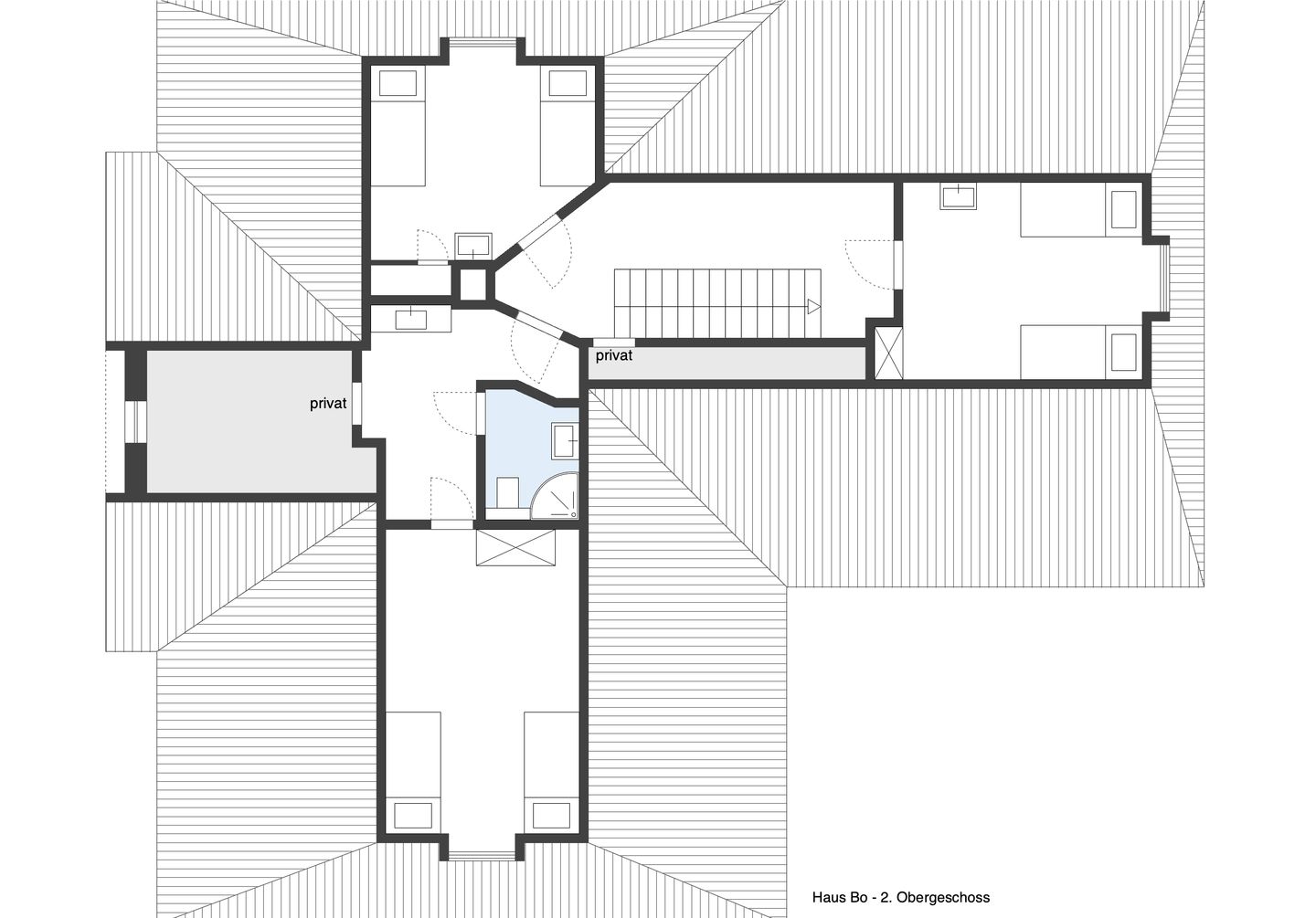
Im 2. Obergeschoss empfangen Sie zwei weitere Schlafzimmer mit je zwei Einzelbetten und einem eigenen Waschbecken sowie ein Schlafzimmer mit zwei Einzelbetten. Auf dieser Etage befindet sich außerdem ein Duschbad.

Bei allen Doppelbetten handelt es sich um Boxspringbetten in Hotelqualität, alle Einzelbetten sind mit hochwertigen Matratzen ausgestattet. Das Wohnzimmer sowie sämtliche Schlafräume verfügen über ein TV-Gerät, WLAN steht Ihnen in der gesamten Unterkunft zur Verfügung.

Im Außenbereich lädt Sie der wunderschöne, eigene Garten ein, im Strandkorb Platz zu nehmen und die Ruhe des Hauses zu genießen oder sonnige Stunden auf der Terrasse zu verbringen.

Zur besseren Orientierung können Sie unter den Objektbildern auch die Grundrisse einsehen.

Auf dem Grundstück befinden sich zwei PKW-Stellplätze.

Für das perfekte Erlebnis empfehlen wir Ihnen unser Wellness-Paket. Fügen Sie es direkt bei der Buchung hinzu oder sprechen Sie uns darauf an, gerne gestalten wir Ihren Aufenthalt noch erholsamer.

Für Handtücher und Bettwäsche ist im Übrigen gesorgt - diese müssen Sie nicht mitbringen.

Hunde sind bei uns willkommen! Sollten sie die Hundemitnahme bei der Buchung nicht schon angemeldet haben, melden sie sich bitte kurz bei uns.

Bitte beachten Sie, dass das Grillen aus Sicherheitsgründen (wegen des Reetdaches) nicht gestattet ist.

Zusammenfassung
  • Art der Unterkunft Ferienwohnung
  • Unterkunft für max. 15 Personen
  • Schlafzimmer 8
  • Nicht-Raucher
  • Haustiere erlaubt
  • Zimmer insgesamt: 10
  • Größe: 300 m2
  • Badezimmer: 5
  • Kinder sind willkommen
mehr anzeigen weniger anzeigen
Ausstattung
Allgemein
  • Heizung
  • Sauna
  • Sichtschutz für alle Fenster
  • Essbereich
  • Sofaecke
  • Privatparkplatz
  • Esstisch
  • Schreibtisch
  • Sessel
  • Sofa
  • Kommode
  • Garderobe
  • Waschmaschine
  • Trockner
  • Ganzkörperspiegel
  • Alarmanlage
Unterhaltung
  • Internet
  • WLAN
  • TV
  • TV Anzahl: 9
  • HiFi-Anlage
Küche
  • Küche
  • Art der Küche: geschlossen mit Esstisch
  • Herd
  • Art des Herdes: Ceran
  • Gefrierfach / -Schrank
  • Kühlschrank
  • Spülmaschine
  • Kaffeemaschine
  • Wasserkocher
  • Toaster
  • Geschirr und Besteck
  • Küchenutensilien
  • Geschirrhandtücher
  • Abfalleimer
Bad
  • Dusche
  • Art der Dusche: bodengleich
  • Anzahl der Duschen: 5
  • Handtücher
  • Badetücher
  • Badausstattung (Seife, Shampoo, etc)
  • WC
  • Haartrockner
  • Spiegel
  • Fenster
Außenbereich
  • Garten
  • Gartenmöbel
  • Terrasse
  • Sonnenliegen
  • Windschutz
  • Strandkorb
  • Abgeschlossenes Grundstück
Kinder
  • Kinder sind willkommen
Themen
  • Wellness
  • Luxus
  • Strand
Entfernungen
  • Meer: 1 km
  • Strand: 900 m
  • Einkaufen: 200 m
  • Restaurant: 100 m
  • Stadt: 300 m
  • Golf: 1.7 km
  • Flughafen: 5.2 km
  • Bahnhof: 6.3 km
  • Fähre: 10.5 km
  • öffentlicher Nahverkehr: 650 m
Vielen Dank für Ihre Anfrage. Wir melden uns in Kürze bei Ihnen.
Zimmer & Betten
Zimmer - Schlafzimmer
  • Eigenes Badezimmer
  • Verdunkelungsmöglichkeit
  • Kleiderschrank
  • 1 großes Doppelbett - Boxspringbett
Zimmer - Schlafzimmer
  • Eigenes Badezimmer
  • Verdunkelungsmöglichkeit
  • Kleiderschrank
  • 1 großes Doppelbett - Boxspringbett
Zimmer - Schlafzimmer
  • Verdunkelungsmöglichkeit
  • Kleiderschrank
  • 1 großes Doppelbett - Boxspringbett
Zimmer - Schlafzimmer
  • Verdunkelungsmöglichkeit
  • Kleiderschrank
  • 2 Einzelbetten
Zimmer - Schlafzimmer
  • Verdunkelungsmöglichkeit
  • Kleiderschrank
  • 1 Einzelbett
Zimmer - Schlafzimmer
  • Verdunkelungsmöglichkeit
  • Kleiderschrank
  • 2 Einzelbetten
Zimmer - Schlafzimmer
  • Verdunkelungsmöglichkeit
  • Kleiderschrank
  • 2 Einzelbetten
Zimmer - Schlafzimmer
  • Verdunkelungsmöglichkeit
  • Kleiderschrank
  • 2 Einzelbetten
Kalender
  • Legende:
  • Belegt/nicht buchbar
  • Frei
  • Ihr Reisezeitraum
Preise & Buchen
{{sl.amount}} x {{sl.service.name}} {{sl.oTotal | vcurrency}} {{sl.total | vcurrency}}
inklusive {{sl.info}}
{{sl.oPrice | vcurrency}} {{sl.price | vcurrency}} {{sl.discountName}}111 x {{sl.timespan}} {{sl.timeLabel}} {{sl.season || sl.annotation}} pro Person pro Erwachsener pro Kind pro Baby
Gesamtbetrag {{QuoteTools.getOriginalTotal(quote,'all') | vcurrency}}
{{QuoteTools.getDiscountName(quote)}} {{QuoteTools.getTotal(quote,'all') | vcurrency}}
{{sl.amount}} x {{sl.service.name}} {{sl.oTotal | vcurrency}} {{sl.total | vcurrency}}
inklusive {{sl.info}}
{{sl.oPrice | vcurrency}} {{sl.price | vcurrency}} {{sl.discountName}}111 x {{sl.timespan}} {{sl.timeLabel}} {{sl.season || sl.annotation}} pro Person pro Erwachsener pro Kind pro Baby
Gesamtbetrag {{QuoteTools.getOriginalTotal(previewQuote,'all') | vcurrency}}
{{QuoteTools.getDiscountName(previewQuote)}} {{QuoteTools.getTotal(previewQuote,'all') | vcurrency}}
Inklusivpreis {{(summary.oTotal || summary.total) | vcurrency}}
{{QuoteTools.getDiscountName(quote)}} {{summary.total | vcurrency}}
Inklusive {{summary.info}}
{{w}}
{{w}}
Optionale Extras
{{sl.amount}} x {{sl.service.name}} {{sl.oTotal | vcurrency}} {{sl.total | vcurrency}}
inklusive {{sl.info}}
{{sl.oPrice | vcurrency}} {{sl.price | vcurrency}} {{sl.discountName}}111 x {{sl.timespan}} {{sl.timeLabel}} {{sl.season || sl.annotation}} pro Person pro Erwachsener pro Kind pro Baby
Verbrauchskosten
{{sl.amount}} x {{sl.service.name}} {{sl.oTotal | vcurrency}} {{sl.total | vcurrency}}
inklusive {{sl.info}}
{{sl.oPrice | vcurrency}} {{sl.price | vcurrency}} {{sl.discountName}}111 x {{sl.timespan}} {{sl.timeLabel}} {{sl.season || sl.annotation}} pro Person pro Erwachsener pro Kind pro Baby
Bitte beachten Sie, dass die Reiseversicherung nur von Gästen mit Wohnort in Deutschland gebucht werden kann.
Testmodus
Kein Versicherungsschutz
{{plan.planCost.amount | vcurrency}}

Preise & Buchen

Bitte wählen Sie die gewünschte Reisezeit und die Anzahl der Gäste aus.
{{sl.amount}} x {{sl.service.name}} {{sl.oTotal | vcurrency}} {{sl.total | vcurrency}}
inklusive {{sl.info}}
{{sl.oPrice | vcurrency}} {{sl.price | vcurrency}} {{sl.discountName}}111 x {{sl.timespan}} {{sl.timeLabel}} {{sl.season || sl.annotation}} pro Person pro Erwachsener pro Kind pro Baby
Gesamtbetrag {{QuoteTools.getOriginalTotal(quote,'all') | vcurrency}}
{{QuoteTools.getDiscountName(quote)}} {{QuoteTools.getTotal(quote,'all') | vcurrency}}
{{sl.amount}} x {{sl.service.name}} {{sl.oTotal | vcurrency}} {{sl.total | vcurrency}}
inklusive {{sl.info}}
{{sl.oPrice | vcurrency}} {{sl.price | vcurrency}} {{sl.discountName}}111 x {{sl.timespan}} {{sl.timeLabel}} {{sl.season || sl.annotation}} pro Person pro Erwachsener pro Kind pro Baby
Gesamtbetrag {{QuoteTools.getOriginalTotal(previewQuote,'all') | vcurrency}}
{{QuoteTools.getDiscountName(previewQuote)}} {{QuoteTools.getTotal(previewQuote,'all') | vcurrency}}
Inklusivpreis {{(summary.oTotal || summary.total) | vcurrency}}
{{QuoteTools.getDiscountName(quote)}} {{summary.total | vcurrency}}
Inklusive {{summary.info}}
{{w}}
{{w}}
Optionale Extras
{{sl.amount}} x {{sl.service.name}} {{sl.oTotal | vcurrency}} {{sl.total | vcurrency}}
inklusive {{sl.info}}
{{sl.oPrice | vcurrency}} {{sl.price | vcurrency}} {{sl.discountName}}111 x {{sl.timespan}} {{sl.timeLabel}} {{sl.season || sl.annotation}} pro Person pro Erwachsener pro Kind pro Baby
Verbrauchskosten
{{sl.amount}} x {{sl.service.name}} {{sl.oTotal | vcurrency}} {{sl.total | vcurrency}}
inklusive {{sl.info}}
{{sl.oPrice | vcurrency}} {{sl.price | vcurrency}} {{sl.discountName}}111 x {{sl.timespan}} {{sl.timeLabel}} {{sl.season || sl.annotation}} pro Person pro Erwachsener pro Kind pro Baby
Bitte beachten Sie, dass die Reiseversicherung nur von Gästen mit Wohnort in Deutschland gebucht werden kann.
Testmodus
Kein Versicherungsschutz
{{plan.planCost.amount | vcurrency}}
Vielen Dank für Ihre Anfrage. Wir melden uns in Kürze bei Ihnen.
Vielen Dank für Ihre Anfrage. Wir melden uns in Kürze bei Ihnen.
Entfernungen
  • 1 km Meer
  • 200 m Einkaufsmöglichkeit
  • 100 m Restaurants
  • 900 m Strand
  • 300 m Stadt
  • 1.7 km Golfen
  • 650 m öffentlicher Nahverkehr
  • 6.3 km Bahnhof
  • 5.2 km Flughafen
  • 10.5 km Fähre

Der Lageplan kann nicht angezeigt werden, da Sie der Verwendung von Google Maps bislang noch nicht zugestimmt haben.

Direkt buchen

Unverbindlich reservieren

Ihre Unterkunft ist gebucht! Ihre Unterkunft ist für Sie reserviert!

Ihre Anfrage ist eingegangen!

Haus Bo - ehemals Stephanie
  • Ferienwohnung - Kampen
  • Maximal 15 Personen
  • Keine Haustiere gebucht
  • {{bookingData.from | vdate('fullDay')}} - {{bookingData.till | vdate('fullDay')}}
{{sl.amount}} x {{sl.service.name}} {{sl.oTotal | vcurrency}} {{sl.total | vcurrency}}
inklusive {{sl.info}}
{{sl.oPrice | vcurrency}} {{sl.price | vcurrency}} {{sl.discountName}}111 x {{sl.timespan}} {{sl.timeLabel}} {{sl.season || sl.annotation}} pro Person pro Erwachsener pro Kind pro Baby
Gesamtbetrag {{QuoteTools.getOriginalTotal(quote,'all') | vcurrency}}
{{QuoteTools.getDiscountName(quote)}} {{QuoteTools.getTotal(quote,'all') | vcurrency}}
Testmodus
{{quote.selectedTravelInsurance.name}}
Die Versicherung bezahlen Sie bitte im Anschluss direkt bei der URV.
{{quote.selectedTravelInsurance.planCost.amount | vcurrency}}
Bitte beachten Sie, dass die Reiseversicherung nur von Gästen mit Wohnort in Deutschland gebucht werden kann.
Bitte füllen Sie alle mit einem Stern * gekennzeichneten Felder aus.
Gutschein einlösen
Der Gutschein wird nach Abschluss der Buchung als geleistete Zahlung verbucht. Die eingelöste Summe beträgt: {{coupon.cash | vcurrency}}
AGB AGB
Aufgrund der kurzfristigen Anreise wird diese Buchung erst nach Zahlungseingang abgeschlossen. Dazu müssen Sie direkt im Anschluss z.B. per Kreditkarte online die Zahlung tätigen.

Wir freuen uns, dass Sie bei uns Urlaub machen möchten! Bitte notieren Sie sich Ihre Buchungsnummer {{bookingResult.nr}}.

In wenigen Augenblicken erhalten Sie von uns eine Buchungsbestätigung mit Ihren Daten und weiteren Details.

Falls Sie keine Email erhalten, schauen Sie bitte in Ihren Spam-Ordner und/oder kontaktieren Sie uns.

Wir freuen uns, dass Sie bei uns Urlaub machen möchten! Bitte notieren Sie sich Ihre Buchungsnummer {{bookingResult.nr}}.

Wir schicken Ihnen in Kürze ein Angebot per Email zu, über das Sie die Unterkunft verbindlich buchen können.

Falls Sie keine Email erhalten, schauen Sie bitte in Ihren Spam-Ordner und/oder kontaktieren Sie uns.

Wir freuen uns, dass Sie bei uns Urlaub machen möchten! Bitte notieren Sie sich Ihre Buchungsnummer {{bookingResult.nr}}.

Bitte schließen Sie Ihre Buchung jetzt per Online-Zahlung ab. Bis dahin ist Ihre Unterkunft noch online verfügbar.

Jetzt per Überweisung zahlen

  • {{type | vcode('schedule')}}: {{pay.amount | vcurrency}} €
    (inkl. Kaution)
    oder
{{paymentMethods.BANKACCOUNT.bankaccount.institution}}
IBAN: {{paymentMethods.BANKACCOUNT.bankaccount.iban}}
BIC: {{paymentMethods.BANKACCOUNT.bankaccount.swift}}
Verwendungszweck: {{bookingResult.nr}} {{bookingResult.customer.showAs}}

Jetzt mit Kreditkarte zahlen

  • oder

Jetzt mit Paypal zahlen

Sie haben eine Reiserücktrittsversicherung gebucht.

Der Versicherungsschutz besteht erst mit der Bezahlung der Versicherung. Bitte bezahlen Sie die Versicherung direkt bei der URV.

Es ist ein Fehler aufgetreten.

{{travelInsuranceResult.transactionIdentifier}}

{{travelInsuranceResult.travelInsurance.reasonText}}

Haus Bo - ehemals Stephanie
  • Ferienwohnung - Kampen
  • Maximal 15 Personen
  • Keine Haustiere gebucht
  • {{bookingData.from | vdate('fullDay')}} - {{bookingData.till | vdate('fullDay')}}
{{sl.amount}} x {{sl.service.name}} {{sl.oTotal | vcurrency}} {{sl.total | vcurrency}}
inklusive {{sl.info}}
{{sl.oPrice | vcurrency}} {{sl.price | vcurrency}} {{sl.discountName}}111 x {{sl.timespan}} {{sl.timeLabel}} {{sl.season || sl.annotation}} pro Person pro Erwachsener pro Kind pro Baby
Gesamtbetrag {{QuoteTools.getOriginalTotal(quote,'all') | vcurrency}}
{{QuoteTools.getDiscountName(quote)}} {{QuoteTools.getTotal(quote,'all') | vcurrency}}
Testmodus
{{quote.selectedTravelInsurance.name}}
Die Versicherung bezahlen Sie bitte im Anschluss direkt bei der URV.
{{quote.selectedTravelInsurance.planCost.amount | vcurrency}}
Bitte beachten Sie, dass die Reiseversicherung nur von Gästen mit Wohnort in Deutschland gebucht werden kann.
Haus Bo - ehemals Stephanie
  • Ferienwohnung - Kampen
  • Maximal 15 Personen
  • Keine Haustiere gebucht
  • {{bookingData.from | vdate('fullDay')}} - {{bookingData.till | vdate('fullDay')}}
{{sl.amount}} x {{sl.service.name}} {{sl.oTotal | vcurrency}} {{sl.total | vcurrency}}
inklusive {{sl.info}}
{{sl.oPrice | vcurrency}} {{sl.price | vcurrency}} {{sl.discountName}}111 x {{sl.timespan}} {{sl.timeLabel}} {{sl.season || sl.annotation}} pro Person pro Erwachsener pro Kind pro Baby
Gesamtbetrag {{QuoteTools.getOriginalTotal(quote,'all') | vcurrency}}
{{QuoteTools.getDiscountName(quote)}} {{QuoteTools.getTotal(quote,'all') | vcurrency}}
Testmodus
{{quote.selectedTravelInsurance.name}}
Die Versicherung bezahlen Sie bitte im Anschluss direkt bei der URV.
{{quote.selectedTravelInsurance.planCost.amount | vcurrency}}
Bitte beachten Sie, dass die Reiseversicherung nur von Gästen mit Wohnort in Deutschland gebucht werden kann.

Diese Unterkünfte könnten Ihnen auch gefallen